Casa semindipendente
Cod. Riferimento: VF-415V
415.000 €
Descrizione
Se desideri una casa semi-indipendente, moderna e a pochi minuti dalla città, questa potrebbe essere la soluzione perfetta per te.
In località Vigatto, in contesto residenziale tranquillo e verde, proponiamo in esclusiva splendida porzione di quadrifamiliare, di nuova costruzione e in fase di ultimazione.
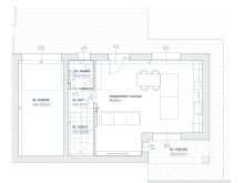
L’abitazione si sviluppa su due livelli ed è progettata per offrire spazi luminosi e funzionali.
Al piano terra troviamo una generosa zona giorno di circa 38 mq, ideale per realizzare una cucina con isola e una zona living conviviale. Da qui si accede direttamente al giardino privato di circa 170 mq, perfetto per pranzi all’aperto, momenti di relax o per far giocare i bambini in totale tranquillità.
Il piano è completato da bagno di servizio e ampia autorimessa.
Salendo al primo piano, la zona notte offre tre camere da letto, tra cui una camera padronale con bagno privato e splendido terrazzo, ideale per iniziare la giornata con uno spazio esterno riservato.
La casa sarà rifinita con materiali di alto capitolato, tra cui eleganti listoni in rovere che valorizzeranno l'intera pavimentazione di tutta la casa.
Grazie alle moderne e importanti dotazioni impiantistiche, l’abitazione garantisce un elevato livello di comfort abitativo: riscaldamento e raffrescamento a pavimento, tapparelle elettriche, impianto fotovoltaico da 6 kW con batteria da accumulo da 10kw e pompa di calore da 17,7 kw ad alta efficienza energetica.
Una casa moderna e tecnologicamente avanzata, progettata per chi desidera comfort, efficienza energetica e attenzione all’ambiente, senza rinunciare all’indipendenza e alla qualità costruttiva, a pochi minuti dalla città.
Importante vantaggio fiscale: l’acquisto avviene direttamente da privato, con imposte calcolate sul valore catastale e non sul prezzo di vendita, evitando l’IVA.
Per ulteriori informazioni fissa il tuo appuntamento in agenzia al numero 0521.1472001, dal Lunedì al Venerdì, dalle 9.00 alle 12.30 e dalle 15.00 alle 19.30
Se devi vendere casa, scopri il nostro servizio : PERMUTA ZERO PENSIERI. Contattaci per una consulenza gratuita.
In località Vigatto, in contesto residenziale tranquillo e verde, proponiamo in esclusiva splendida porzione di quadrifamiliare, di nuova costruzione e in fase di ultimazione.
L’abitazione si sviluppa su due livelli ed è progettata per offrire spazi luminosi e funzionali.
Al piano terra troviamo una generosa zona giorno di circa 38 mq, ideale per realizzare una cucina con isola e una zona living conviviale. Da qui si accede direttamente al giardino privato di circa 170 mq, perfetto per pranzi all’aperto, momenti di relax o per far giocare i bambini in totale tranquillità.
Il piano è completato da bagno di servizio e ampia autorimessa.
Salendo al primo piano, la zona notte offre tre camere da letto, tra cui una camera padronale con bagno privato e splendido terrazzo, ideale per iniziare la giornata con uno spazio esterno riservato.
La casa sarà rifinita con materiali di alto capitolato, tra cui eleganti listoni in rovere che valorizzeranno l'intera pavimentazione di tutta la casa.
Grazie alle moderne e importanti dotazioni impiantistiche, l’abitazione garantisce un elevato livello di comfort abitativo: riscaldamento e raffrescamento a pavimento, tapparelle elettriche, impianto fotovoltaico da 6 kW con batteria da accumulo da 10kw e pompa di calore da 17,7 kw ad alta efficienza energetica.
Una casa moderna e tecnologicamente avanzata, progettata per chi desidera comfort, efficienza energetica e attenzione all’ambiente, senza rinunciare all’indipendenza e alla qualità costruttiva, a pochi minuti dalla città.
Importante vantaggio fiscale: l’acquisto avviene direttamente da privato, con imposte calcolate sul valore catastale e non sul prezzo di vendita, evitando l’IVA.
Per ulteriori informazioni fissa il tuo appuntamento in agenzia al numero 0521.1472001, dal Lunedì al Venerdì, dalle 9.00 alle 12.30 e dalle 15.00 alle 19.30
Se devi vendere casa, scopri il nostro servizio : PERMUTA ZERO PENSIERI. Contattaci per una consulenza gratuita.
Caratteristiche
Camere: 3
Bagni: 3
Riscaldamento: Autonomo
Combustibile Riscald.: Pompa di calore
115 MQ
147 MQ comm.
Stato immobile: Nuovo
Giardino: Privato
Giardino MQ: 170
Posto auto: SI
Garage: SI
Classe ener.: A4
Locali: 4
Balcone: SI, 2 balconi
Condizionatore: SI
Totale piani: 2
Su più livelli
Anno costr.: 2026
Cucina: Angolo cottura
Esposizione:
Nord Est
Porta Blindata
Cancello Elettrico
VideoCitofono
Fibra Ottica