Porzione di trifamiliare
Cod. Riferimento: AA-C670
670.000 €
Descrizione
Luxury Living presenta la porzione centrale di una residenza esclusiva dove ogni dettaglio parla di stile, innovazione e armonia.
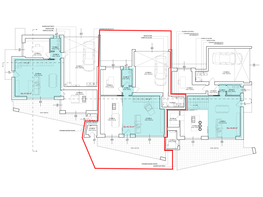
Nel cuore più riservato del sud/est di Parma, in Strada Budellungo, prende vita una raffinata villa centrale all’interno di un elegante progetto trifamiliare, immerso in un contesto di sole ville con strada privata. Un'abitazione pensata per chi desidera vivere nella quiete più assoluta, senza rinunciare alla bellezza architettonica e al comfort contemporaneo.
Con ingresso indipendente e spazi sapientemente distribuiti su due livelli, questa porzione si distingue per la luminosità degli ambienti e la continuità tra interno ed esterno. La zona giorno al piano terra ospita un ampio soggiorno con cucina open-space, che si apre, attraverso grandi vetrate panoramiche, su un portico riservato affacciato sul giardino privato, con possibilità di realizzare una piscina frontale, perfettamente integrata nel contesto abitativo.
Al primo piano si sviluppa la zona notte, composta da tre camere matrimoniali, tra cui una suite padronale completa di bagno privato, cabina armadio e terrazzo esclusivo. Un secondo bagno finestrato completa il piano.
A servizio dell’abitazione, al piano terra, trovano spazio anche una lavanderia separata e una stanza polivalente, ideale come studio o quarta camera.
La villa centrale coniuga privacy, efficienza energetica (classe A4 ZEB) e dotazioni tecnologiche di ultima generazione: impianto fotovoltaico da 6 kW, pompa di calore, riscaldamento e raffrescamento a pavimento, frangisole Griesser elettrici e serramenti in alluminio Metra.
Consegna prevista per fine 2026.
Qui, ogni dettaglio racconta una storia di benessere, luce e armonia.
Non è solo una casa: è il luogo dove iniziano i tuoi momenti più belli.
Per ulteriori informazioni fissa il tuo appuntamento in agenzia al numero 0521.1472001, dal Lunedì al Venerdì, dalle 9.00 alle 12.30 e dalle 15.00 alle 19.30
Se devi vendere casa, scopri il nostro servizio : PERMUTA ZERO PENSIERI. Contattaci per una consulenza gratuita.
Nel cuore più riservato del sud/est di Parma, in Strada Budellungo, prende vita una raffinata villa centrale all’interno di un elegante progetto trifamiliare, immerso in un contesto di sole ville con strada privata. Un'abitazione pensata per chi desidera vivere nella quiete più assoluta, senza rinunciare alla bellezza architettonica e al comfort contemporaneo.
Con ingresso indipendente e spazi sapientemente distribuiti su due livelli, questa porzione si distingue per la luminosità degli ambienti e la continuità tra interno ed esterno. La zona giorno al piano terra ospita un ampio soggiorno con cucina open-space, che si apre, attraverso grandi vetrate panoramiche, su un portico riservato affacciato sul giardino privato, con possibilità di realizzare una piscina frontale, perfettamente integrata nel contesto abitativo.
Al primo piano si sviluppa la zona notte, composta da tre camere matrimoniali, tra cui una suite padronale completa di bagno privato, cabina armadio e terrazzo esclusivo. Un secondo bagno finestrato completa il piano.
A servizio dell’abitazione, al piano terra, trovano spazio anche una lavanderia separata e una stanza polivalente, ideale come studio o quarta camera.
La villa centrale coniuga privacy, efficienza energetica (classe A4 ZEB) e dotazioni tecnologiche di ultima generazione: impianto fotovoltaico da 6 kW, pompa di calore, riscaldamento e raffrescamento a pavimento, frangisole Griesser elettrici e serramenti in alluminio Metra.
Consegna prevista per fine 2026.
Qui, ogni dettaglio racconta una storia di benessere, luce e armonia.
Non è solo una casa: è il luogo dove iniziano i tuoi momenti più belli.
Per ulteriori informazioni fissa il tuo appuntamento in agenzia al numero 0521.1472001, dal Lunedì al Venerdì, dalle 9.00 alle 12.30 e dalle 15.00 alle 19.30
Se devi vendere casa, scopri il nostro servizio : PERMUTA ZERO PENSIERI. Contattaci per una consulenza gratuita.
Caratteristiche
Camere: 4
Bagni: 3
Riscaldamento: Autonomo
Tipo Riscaldamento: A pavimento
Combustibile Riscald.: Pompa di calore
204 MQ comm.
Stato immobile: Nuovo
Giardino: Privato
Garage: SI
Classe ener.: A4
Locali: 5
Terrazzo: SI
Cantina: SI
Condizionatore: SI
Totale piani: 1
Su più livelli
Anno ristr.: 2026
Cucina: A vista
Esposizione:
Nord Sud Ovest
Porta Blindata
Allarme
Cancello Elettrico
VideoCitofono
Fibra Ottica
Piscina
Accesso disabili