Trilocale
Cod. Riferimento: MD-255
255.000 €
Descrizione
Nella tranquilla e ricercata zona di Martorano, immersa nel verde e a pochi minuti dalla città di Parma, proponiamo in vendita questo trilocale inserito all’interno di una corte chiusa con parcheggio. L’immobile garantisce un contesto riservato e sicuro, ideale per chi cerca serenità senza allontanarsi dai servizi cittadini.
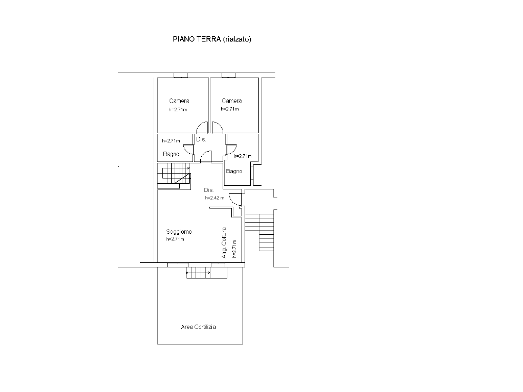
L’appartamento, ristrutturato nel 2022, si apre su un soggiorno ampio e molto luminoso, valorizzato da un moderno open space con cucina a vista, rifinita con materiali di alta qualità e cura dei dettagli.
Gli ambienti risultano accoglienti e funzionali, perfetti per la vita quotidiana e per momenti di convivialità.
Un comodo disimpegno conduce alla zona notte, composta da due spaziose camere matrimoniali e due bagni, entrambi rifiniti con ottimi materiali e soluzioni eleganti. Una scala dal design raffinato accompagna al piano seminterrato, dove si sviluppa una grande taverna con camino, uno spazio caldo e accogliente, ideale per ospitare amici e familiari, organizzare pranzi, cene o semplicemente rilassarsi in compagnia.
Dalla taverna si accede direttamente, tramite porta interna, al garage di generose dimensioni, completo di lavanderia e posto auto, una soluzione pratica e funzionale che aggiunge valore all’abitazione. Completa la proprietà un giardino privato, perfetto per godere degli spazi esterni, del verde e della tranquillità che circondano la casa.
Costruito negli anni ’90 e rinnovato con gusto moderno, questo appartamento rappresenta la soluzione ideale per chi desidera qualità, spazio e privacy, in un contesto residenziale curato e strategicamente posizionato.
Per ulteriori informazioni fissa il tuo appuntamento in agenzia al numero 0521.1472001, dal Lunedì al Venerdì, dalle 9.00 alle 12.30 e dalle 15.00 alle 19.30.
Se devi vendere casa, scopri il nostro servizio : PERMUTA ZERO PENSIERI. Contattaci per una consulenza gratuita.
L’appartamento, ristrutturato nel 2022, si apre su un soggiorno ampio e molto luminoso, valorizzato da un moderno open space con cucina a vista, rifinita con materiali di alta qualità e cura dei dettagli.
Gli ambienti risultano accoglienti e funzionali, perfetti per la vita quotidiana e per momenti di convivialità.
Un comodo disimpegno conduce alla zona notte, composta da due spaziose camere matrimoniali e due bagni, entrambi rifiniti con ottimi materiali e soluzioni eleganti. Una scala dal design raffinato accompagna al piano seminterrato, dove si sviluppa una grande taverna con camino, uno spazio caldo e accogliente, ideale per ospitare amici e familiari, organizzare pranzi, cene o semplicemente rilassarsi in compagnia.
Dalla taverna si accede direttamente, tramite porta interna, al garage di generose dimensioni, completo di lavanderia e posto auto, una soluzione pratica e funzionale che aggiunge valore all’abitazione. Completa la proprietà un giardino privato, perfetto per godere degli spazi esterni, del verde e della tranquillità che circondano la casa.
Costruito negli anni ’90 e rinnovato con gusto moderno, questo appartamento rappresenta la soluzione ideale per chi desidera qualità, spazio e privacy, in un contesto residenziale curato e strategicamente posizionato.
Per ulteriori informazioni fissa il tuo appuntamento in agenzia al numero 0521.1472001, dal Lunedì al Venerdì, dalle 9.00 alle 12.30 e dalle 15.00 alle 19.30.
Se devi vendere casa, scopri il nostro servizio : PERMUTA ZERO PENSIERI. Contattaci per una consulenza gratuita.
Caratteristiche
Camere: 2
Bagni: 2
Riscaldamento: Autonomo
Tipo Riscaldamento: Termoconvettori
Combustibile Riscald.: Metano
123 MQ comm.
Stato immobile: Ristrutturato
Giardino: Privato
Posto auto: SI
Garage: Singolo
Locali: 3
Cantina: SI
Condizionatore: SI
Piano: Rialzato
Totale piani: 2
Su più livelli
Tot. unità presenti: 4
Anno costr.: 1990
Anno ristr.: 2022
Cucina: A vista
Esposizione:
Nord Sud
Porta Blindata
Cancello Elettrico
Camino/Caminetto
VideoCitofono
Fibra Ottica
Idromassaggio
Taverna